Australia

$1,562,800

Lot 5 Pavillion Drive, Peregian Springs, Qld 4573

# Location

Description

Caterina 322, Urban – House & Land Package House & Land Package by Stroud Homes Noosa

SITE COSTS M Class Slab Site Works to 500mm

INCLUSIONS With over 90 FULLY LOADED inclusions, your home will come packed with everything you need to move in! Here are some of our highlight inclusions; - 900mm stainless steel freestanding cooker - Choice of built in 700mm rangehood OR 900mm stainless steel rangehood, entirely ducted to eave - Stainless steel dishwasher - Soft close to cutlery drawer - Piering included (“P” sites excluded) - Independent handover inspection - Frameless mirrors standard - Front entry door, as per brochure - Flyscreens to all windows - Barrier screens to all sliding doors - Tiles to porch area - Clothesline - TV antenna - Downlights to living areas, bedrooms and bathrooms - Bulkheads above overhead cupboards

ADDITIONAL INCLUSIONS **This is a proposed house and land package which is yet to be constructed. **Subject to preliminary investigations

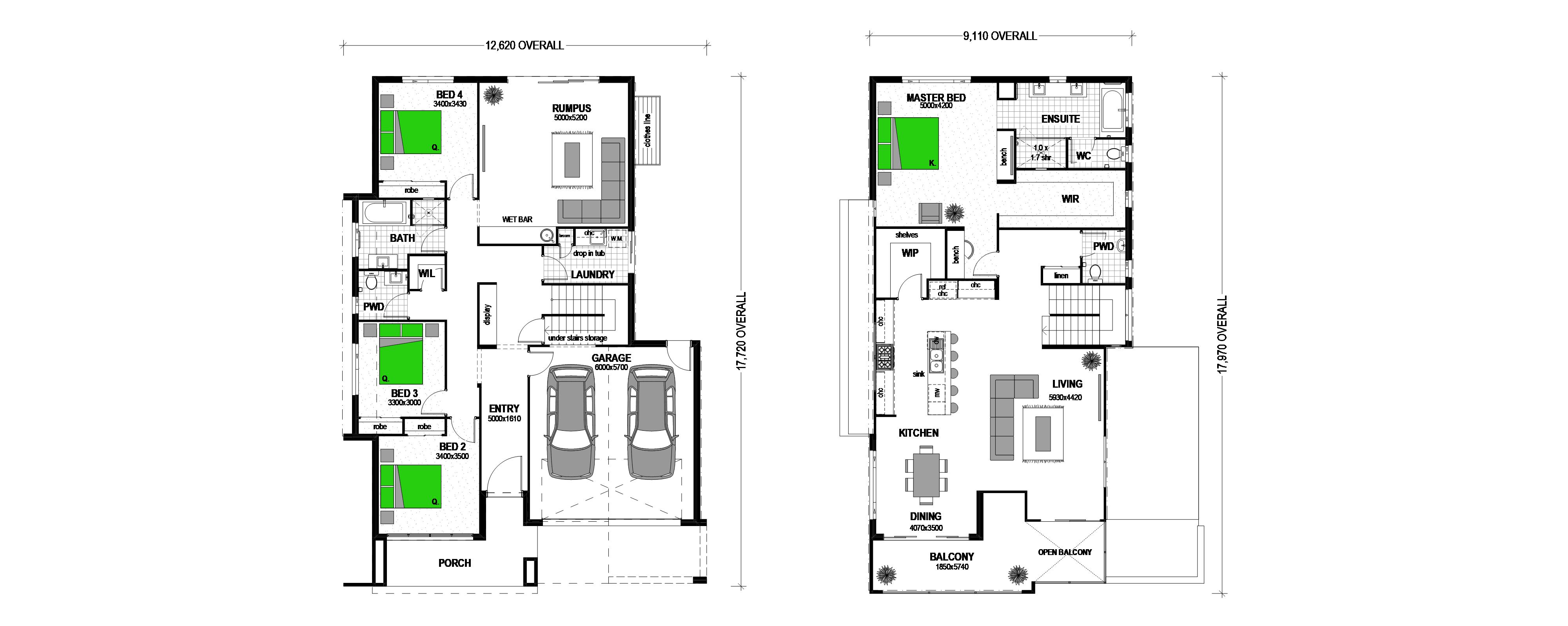
ABOUT CATERINA 322 Discover the luxury of coastal elegance with our exclusive Caterina 324. This spacious double-storey residence exudes contemporary charm and boasts breathtaking views from its upstairs living areas.

Upstairs Sanctuary, step into a world of sophistication with the open-plan kitchen, dining, and living area situated on the upper level. Enjoy seamless indoor-outdoor living as you step onto the balcony and soak in the coastal breeze.

Retreat to the impressive master bedroom, secluded upstairs for added privacy. Pamper yourself in the generous walk-in wardrobe and indulge in the luxurious ensuite. Plus, elevate your productivity with a convenient study nook, transforming your master suite into a tranquil haven.

Versatile Living Spaces, downstairs, discover three additional bedrooms perfectly designed for family comfort. And for entertainment enthusiasts, a spacious rumpus room awaits, complete with a wet bar for hosting unforgettable gatherings.

Embrace the coastal lifestyle with this stunning home, offering unparalleled comfort and style. Whether you're relaxing on the balcony or entertaining in the rumpus room, every moment is an opportunity to savor the coastal ambiance.

Don't miss out on the chance to make the Caterina 324 your own. Enquire now to secure this exceptional House & Land package and start living the coastal dream!

ABOUT COURTNEY CUNNINGHAM, Sales Consultant, Stroud Homes Noosa For more information contact us today!

ABOUT STROUD HOMES With more than 20 years of design and building experience, Stroud Homes has a proven track record of success and a strong reputation for exceptional service and superior quality. The man behind the locally owned brand is James Stroud. Stroud Homes has a great reputation as an award-winning builder. We can provide simple and cost-effective advice, from our designs or yours. How do we do it? 1. Unbeatable buying power via excellent supplier relationships 2. Commitment to continuous improvement to customer service and quality 3. Pre-pricing new homes on vacant land Stroud Homes care about our customers and we do what we say we’re going to do. We take the time to listen and work alongside our customers every step of the way, so the end result feels just right,like home.

CONSUMER PLEASE NOTE Consumer please note: Stroud Homes is not a real estate agent, cannot sell land and will refer you to a licensed agent to complete any land purchase. Stroud Homes has used the price (as advertised by local real estate agents) for the block of land referred to in this package. Using this advertised price allows us to helpfully provide you with a price that is more realistic because we’ve tailor fit the home to the land - considering site works, water and sewer pipe and electrical lead - in lengths and other site specific items. Images and photographs are an example only and may have representations of fixtures and upgraded items not included in the package price or Fully Loaded Inclusions of Stroud Homes.

See Stroud Homes website for House & Land Package Terms & Conditions

View More #

Floor Plans

Location

  • Contact the agency

    To request an inspection

  • # Call # Email

Courtney Cunningham

Agent Name

# Report Listing

Looking for a property?

  • Top listings
  • Investment
  • Development
  • Personal home
  • Price reports
  • Suburb reports

Do you own a property?

  • Place a free listing
  • Services for private advertisers
  • Guide to selling your home
  • Insurance
  • Improve the photos of your listing
  • Value your property for free

Are you a real estate proffesional?

  • Publish your agencies properties
  • Already a client? Log into your account
  • Advertising on Australian Real Estate
  • Australian Real Estate data technology for property insights
  • Real Estate courses